- Du är här:
 - Startsida
 - Kommun och politik
 - Aktuella projekt
 - Brännebacka Västra
 
Brännebacka Västra

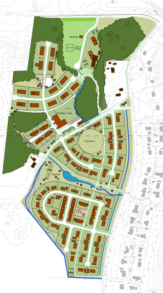
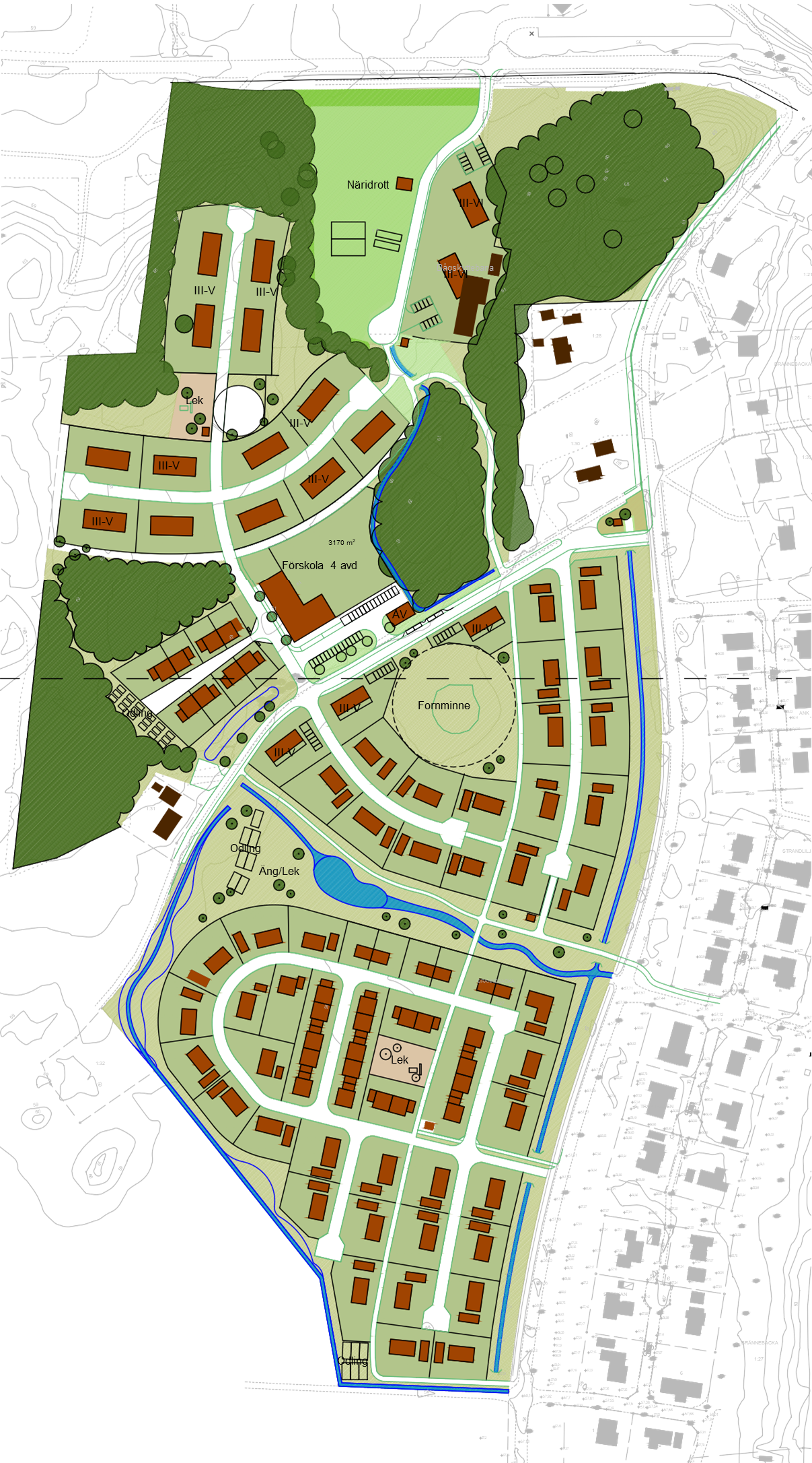
Brännebacka är ett av Grästorps nyaste bostadsområden som nu växer och blir större. Här finns byggklara villatomter för dig som söker ett naturnära boende med kort avstånd till tätort och service.
Brännebacka kan rymma upp till 70 småhus och 400-450 lägenheter. Här finns också möjlighet att bygga centrumbyggnader. Stort fokus ligger på naturvärden för att knyta samman området med den natursköna omgivningen. Gröna ytor, ängsmarker och odlingsmöjligheter integreras med bebyggelsen och skapar möjlighet för rekreation och gemenskap.
Med nya gång- och cykelvägar knyts området samman med tätorten - på Brännebacka har du nära till både natur, idrott, skola och service!
Byggklara villatomter 
Det finns fortfarande chans att köpa en villatomt på Brännebacka Västra! Tomterna på Brännebacka Västra är byggklara med vatten, avlopp, el och fiber framdraget. Du behöver inte stå i tomtkön för att köpa en tomt, eftersom tomterna redan erbjudits tomtkön.
Längre ner på sidan hittar du mer information om tomterna på Brännebacka, så som priser, detaljplan för området och mer.
Välkommen till Grästorp!
I Grästorp har du nära till allt. Vacker och variationsrik natur runt knuten med promenadstråk och motionsområden. Här finns idrottsplatser med fotbollsplaner, ishall, bollhall och ridhus. En topprankad skola, ett aktivt näringsliv i toppklass och ett rikt föreningsliv. Här finns kulturhuset och konserthuset med arrangemang för hela familjen, ett nyrenoverat badhus och en stadsnära golfbana.
Dessutom är det enkelt att pendla till och från Grästorp, med både tåg och buss som snabbt och enkelt tar dig till intilliggande städer.






